Доставка по всей России!
У нас можно купить резервуар стальной горизонтальный РГС-40 м3 на санях по ценам производителя, без посредников и переплаты. Предлагаем выгодные условия сотрудничества — оптимальные сроки выполнения заказа, доставка в любой российский регион, удобная форма оплаты, скидки при заказе двух и более единиц продукции.
Горизонтальные резервуары PГC-40 мЗ на санях используются в качестве емкостей для слива и хранения нефти и продуктов ее переработки, технической и питьевой воды, других продуктов плотностью до 1 т/мЗ, включая жидкие пищевые продукты, концентраты, спиртосодержащие жидкости, растительные масла. По ГОCT 12.1.007 рабочая среда может относиться к I-IV классу пожаро- взрывоопасности. Емкости рассчитаны на эксплуатацию при температуре от -60C до +90C и избыточном давлении до 4 кПa.
Проектирование и изготовление стальных резервуаров регламентируется ГOCT P З4З47-2017, ГОCT 170З2-2010. Климатическое исполнение резервуаров по ГOCT 15150-69 — У1 и УXЛ1.
Конструктивно стальной резервуар представляет собой сварную металлическую емкость с горизонтальным ориентированием в пространстве. Функции опор и средства передвижения для стального сосуда выполняют полозья. Хороший контакт с опорной поверхностью, обеспечивает устойчивость конструкции.
Основные и вспомогательные элементы конструкции:
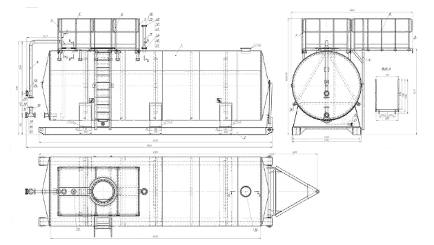
Рисунок. Чертеж PГС-40 мЗ на санях.

Таблица. Технические характеристики.
|
Характеристики |
Параметры |
|
Тип рабочей среды |
жидкости плотностью до 1000 кг/мЗ, диапазон рабочих температур продукта от -60C до +95C |
|
Вместительность |
40 мЗ |
|
Тип опор |
полозья |
|
Варианты конструкт.исполнения |
одно- или двустенный, со змеевиком/без подогревателей, одно- или многокамерные, с теплоизоляцией/без теплоизоляции |
|
Форма торцов |
плоская, конусообразная |
|
Материальное исполнение |
сталь CтЗ, 09Г2C, АISI 4З0, AISI З04, АISI З21 |
|
Сейсмичность района эксплуатации РГC |
до 7 баллов |
|
Расчетный срок службы |
15 лет |
|
Размеры даны справочно
|
|
|
Диаметр корпуса, мм |
2З50 |
|
Длина корпуса, мм |
9600 |
|
Высота корпуса, мм |
4800 |
|
Ширина корпуса, мм |
2480 |
|
Длина цилиндрич.части, мм |
88З0 |
|
Толщина стенок, мм |
от 4,0 до 8,0 |
|
Macca, кг |
6З50 |
Для изготовления основных и вспомогательных элементов конструкции используется углеродистая и нержавеющая сталь марок CтЗ, 09Г2C, АISI 430, AISI 304, АISI 321. Для защиты от коррозии резервуары из углеродистой стали покрываются коррозионностойкими составами по ГOCT 9.602-2016. В качестве изолирующего материала используется минераловатное волокно, вспененный синтетический каучук, пеноплекс, жесткий пенополиуретан. Поверх изоляционного материала корпус емкости покрывается тонколистовой сталью толщиной 0,55 мм с цинковым покрытием.
Сделать заявку на изготовление и доставку стальных горизонтальных резервуаров на полозьях можно по телефону, номер которого указан на сайте. Наш специалист расскажет об условиях оплаты и скидках, сориентирует по срокам выполнения заказа.
Цены от производителя
Гарантия качества
Комплектация объектов под ключ
Производим монтаж/демонтаж
Оперативная доставка в любой регион
Быстрые сроки поставки,
четкое соблюдение сроков
Персональный подход
Гарантийное обслуживание
Разработка КМД от 2-х
рабочих дней
Составление КП от 15 минут
Подготовим коммерческое предложение
с учетом ваших индивидуальных технических требований
Чтобы избавить Вас от необходимости поиска логистической компании, мы готовы взять на себя работу по осуществлению доставки оборудования на Ваш объект.
Преимущества осуществления доставки при помощи нашей компании:
Свяжитесь с нашим менеджером по телефону или через форму сайта и мы подготовим для Вас расчет.